Descrizione dell'immobile

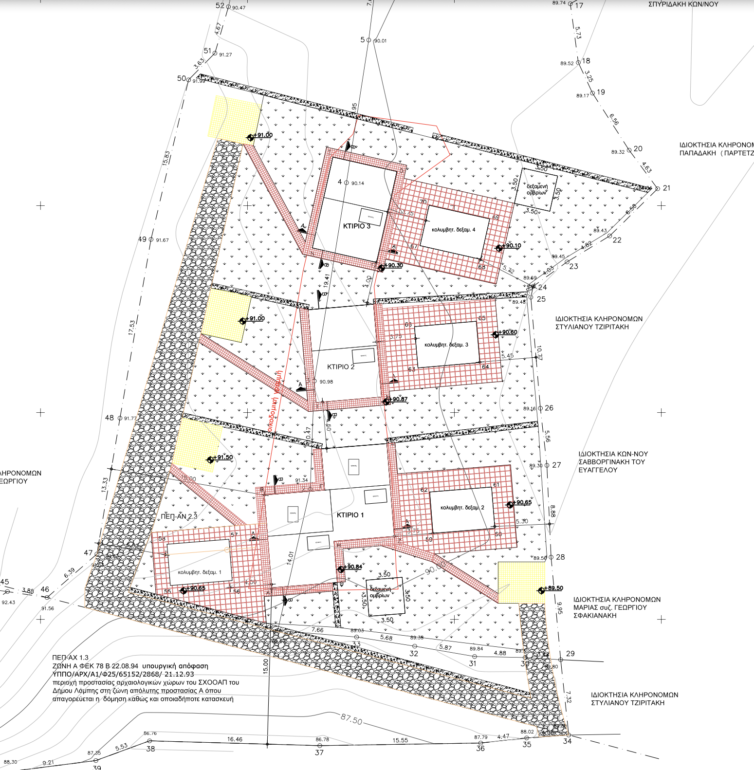
Si tratta di un’eccellente opzione di investimento per un terreno edificabile di 4.135 mq, con licenza edilizia per la costruzione di 4 case in pietra con piscina. Si trova nella regione di Triopetra/Ligres, vicino alla spiaggia (1 km) e gode di una vista panoramica sul mare.

Dettagli

Proprietà ID
5203
Città
Triopetra
Tipo di proprietà
complesso di ville, immobili per investimento, terreni edificabili, Terreni-rurali
Superficie del terreno
4135.00m2
Diritti di costruire
200.00m2

Informazioni utili

  • aeroporto: 105
  • dist. dal mare, in km: 1
  • città più vicina, km: 16
  • Porta: 100

Indirizzo

  • Città Triopetra
  • Regione di interesse Rethymno
  • Country Grecia

Contatto l'agente


    This site is protected by reCAPTCHA and the Google Privacy Policy and Terms of Service apply.

    Compare listings

    Compare